Remedial Documents

Current plans are not drawn accurately? Building Permit Refusal?
On-site construction issue?

Remedial Documents

From concept to building permit drawings for new dwelling projects.

Inaccurate plans can cost you a lot of money and time. It is important to get “high quality” working drawings from the beginning. We check our documents with attitude and pride, which leads to issuing of accurate plans for simpler and smoother construction process on site.

 

Re-draw is always our approach in dealing with original CAD files containing errors. In most cases, drawing from scratch takes less time than amending and fixing up existing CAD drawings.

Common errors found with remedial work:

Parapet height shown too low to conceal roof structure

Head height clearance not as per BCA/NCC especially under the staircase

Non-standard construction technique used

Not complying with Rescode or MCP

Ground Floor, First Floor staircase not lining up

Wrong dimensions on plans

Driveway vehicle gradient is too steep

Non-practical access space within wet areas

Lack of details and sections

Poor CAD technique leading to drafting errors

Site cut, earthworks on sloping site not drawn accurate

Uncoordinated (discrepancies) between floor plans, elevations, sections & internals

This service is very common among our partner builders, where clients bring in drawings with significant issues on plans, or they simply want to impose more accurate plans.

 

We analyse all the issues presented to us based on construction technique & regulations. We also issue a list of adjustments we have made to the drawings or recommendations for re-work.

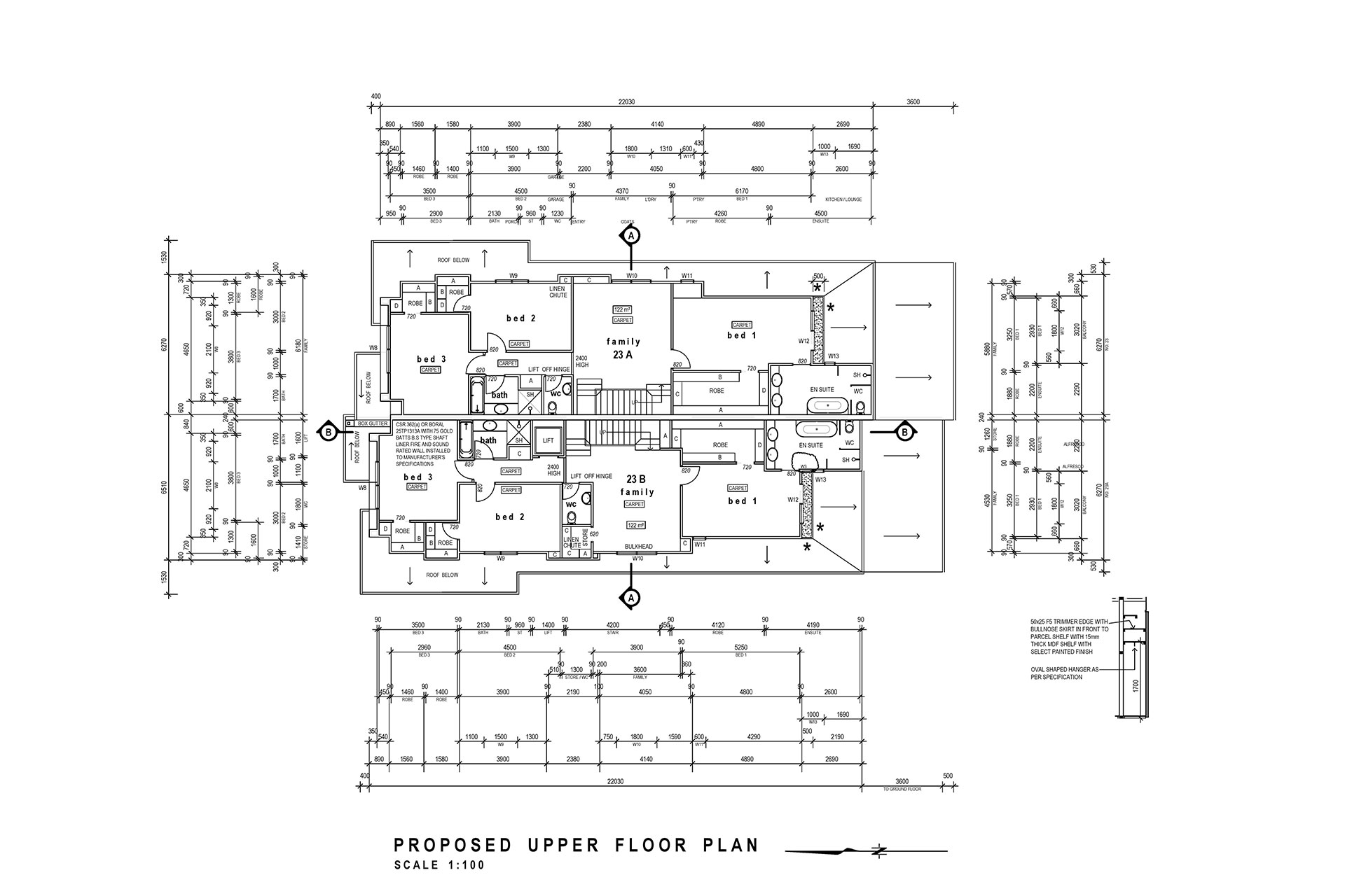
Sample Plans

Before – Ground Floor Plan
After – Ground Floor Plan
Before – First Floor Plan
After – First Floor Plan
Before – Elevations
After – Elevations

Sample Drafting Clarification Notes

We have modified staircase (winder box) due to construction issue with the supplied plans. Please confirm if ok as shown.

Please confirm house area ok as shown. (Note: Supplied plans showing incorrect areas.)

We have amended party wall thickness to 290mm Partiwall System as per the manufacturers specs in lieu of 240mm. Please confirm all room sizes ok as shown.

Note: Parapet heights increased to conceal roof structure.

Note: Brackets will be required for solar HWS panels due to low roof pitch.

Note: Steps to Porch not required due to flat site.

Garage ceiling level dropped to 2735mm to match with the supplied wall heights on the Elevations and Town Planning documents. Please confirm ok.

Note: Slimline head kit will be required for Garage Panel Lift Doors due to lack of motor space with standard head kit. Confirm ok.

Bulkheads (lowered ceiling) will be required to First Floor jut-outs. Supplied plans & Town Planning approved plans showing all different heights to the jut-outs on the elevations. Please confirm if ok as shown.

First Floor balustrade changed to work with head clearance. Please confirm ok.

Clarify gutter construction for Alfresco roof. Supplied Elevations showing gutters to South Elevation but Parapet to East / West Elevations? We have shown parapet walls with box gutters for now.

Note: Alternative option will be required for heating unit due to lack of roof space with 1 deg. roof pitch. Please consult with heating unit manufacturer.

Please indicate condenser unit locations for refrigerated cooling unit and confirm if 3 phase power required.

Please confirm stormwater drainage method to balcony due to dwarf walls.

We have altered Ground Floor Study and Ensuite / Pwd (both Unit 1 & 2) layout to allow for access to the showers. Please confirm if ok as shown or alter to suit.

First floor bathroom layout changed for both units. Supplied plans showing 600 wide bathtub and lack of access space to the showers. Please confirm if ok as shown.

Clarify exact location of Linen / L’dry chute to both units. They are not lining up with L’dry Storage cupboards. Please specify alternative locations if required.

Supplied Plans showing Deep Revealed Windows to façade. We have shown standard reveal depth with 90mm wall to match with floor plan. Please confirm if ok.

Recommend having additional post to Alfresco due to large span beams.

Supplied plan showing incorrect window size on the Window Schedule and Elevations. (W13 1000x1200). We have shown 1200x610 window to fit and avoid interference with screening. Please confirm ok.

Family and Bed 2 windows have increased to cater for minimum light and ventilation to comply with BCA / NCC. Please confirm if Town Planning amendment is required.

Note: Bulkhead shown to Family Room (Unit 23A) Please clarify if clients wish to have bulkhead or is this drafting error?

Clarify if rainwater tank to be included. Notes for the rainwater tank shown on the supplied plans but not the actual rainwater tank.

Cupboards to Unit 23A (former 23B) First floor doesn’t work due to staircase. We have incorporated into WIL as per the new quote. Please confirm if ok as shown.

First Floor Ensuite layout changed to allow for better access and to match with the latest quote. Please confirm if ok as shown.

Box gutter between 23 & 23A to Theatre / Study area doesn’t work due to fire separation between units. Please confirm new location of box gutter if ok as shown.

We have eliminated ridge line to Ground Floor rear of the house due to Trimdek Room. Please confirm if ok as shown or alter to suit.

Please confirm if below items have been allowed for (Not in quote)

  • Kitchen stone nib
  • Full height shower screen where applicable
  • Floor to ceiling wall tiles to wet areas
  • Additional undermount sinks to WIP
  • Additional basin to Bed 1 Ensuite. Quote only allows for 1no. basin
  • Robe fit-out to all WIRs

Interested to partner with us in your next project?

We can help you bring ease to your building requirements with skilled,
experienced and efficient way of drafting.

Interested to partner with us in your next project?

We can help you bring ease to your building requirements with skilled, experienced and efficient way of drafting.